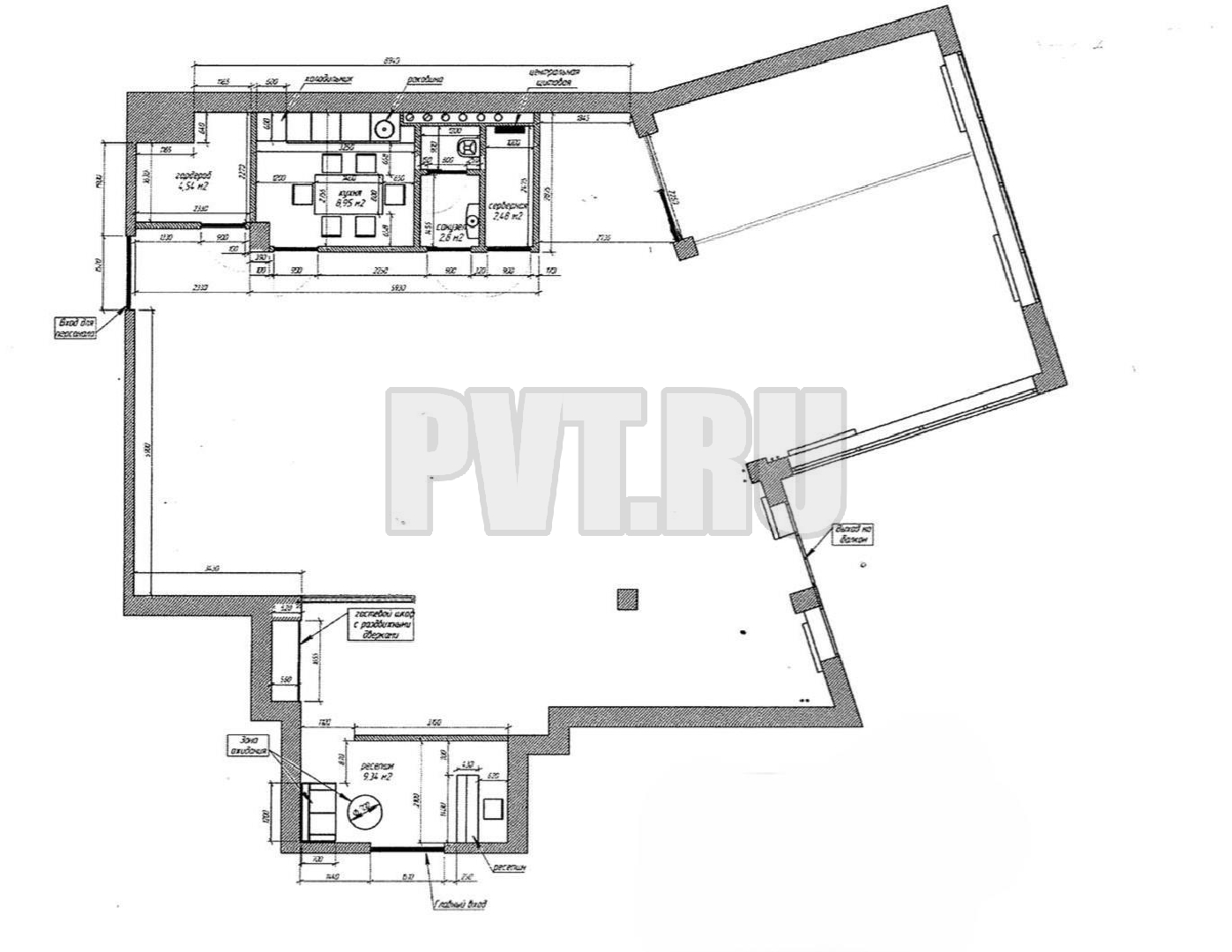
Офис, 200,7 м², готово к въезду

Характеристики помещения

Площадь

200,7 м²

Парковка

На прилегающей территории

Есть кондиционирование

Да

Есть кухня

Да

Есть Серверная

Да

Есть СКС

Да

410 000 ₽/мес.

24 514,20 ₽/м²/год

Связаться с нами

Коммерческие условия

Налогообложение

УСН

B+

Класс

25

Налоговая

2006

Год постройки

55 000 м²

Общая площадь

4 128 м²

Полезная площадь

16

Количество этажей

Вы можете записаться на просмотр интересующей вас площади